Taloon on tällä viikolla asennettu peltikattoa, mutta työmiehet menivät välillä toiselle työmaalle hommiin, joten peltikaton asennus ei ole ihan vielä valmis. Peltiä puuttuu pikkuisen vielä talon etupuolelta sekä kokonaan saunarakennuksesta. Katon pulpettiosaan tulevat ikkunat on myös asennettu.
Sisällä on kaivettu viemäriputkien paikkoja hiekkaan (tulevan lattian alle siis) ja putket on asennettu paikoilleen.
Magnus kävi keskiviikko-iltana asentamassa vielä muovit kaikkien ikkunoiden suojiksi talon ulkopuolelle, ettei vettä pääse ikkunoiden raoista rakenteisiin, sillä täällä on ollut ihan hirveä sää viime päivinä. Pitäisi tilata ikkunapellit, sillä ne eivät kuuluneet talotoimitukseen.
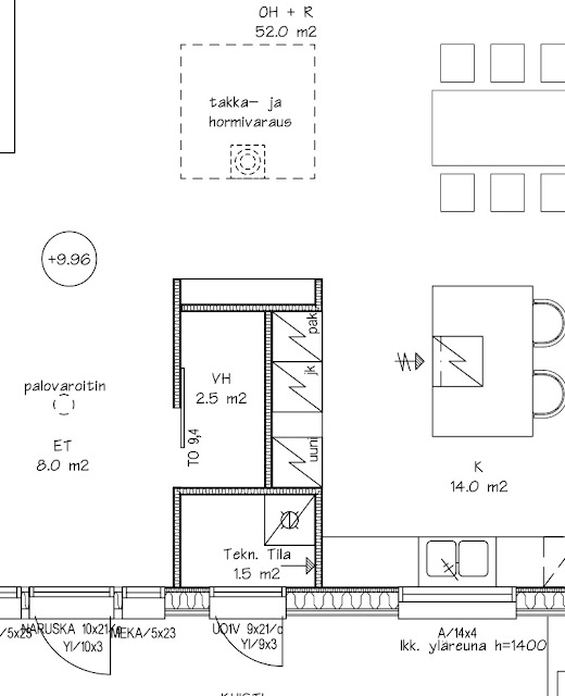
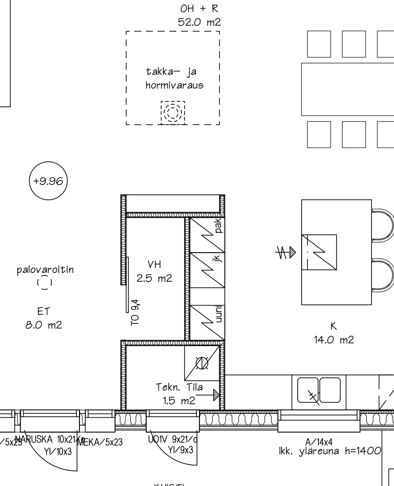
Unidrain-lattiakaivotkin tilattiin jo, sillä ne pitää pian jo asentaa! Valitsimme Column-ritilän. Selvisi myös, että kurastoppari toimii kodinhoitohuoneen lattiakaivona, joten sinne ei tarvitse erillistä lattiakaivoa ja lattia voidaan laatoittaa suurella 30×60 laatalla, sillä kaatoja ei tarvita.
Tällä viikolla tuli ilmi myös, että teknistätilaa joudutaan venyttämään eteenpäin n. 20 cm, jotta tekniseentilaan tulevien laitteiden eteen jää enemmän tilaa huoltoa varten. Tämä tarkoittaa sitä, että eteisen ja keittiön välinen hyllykkö tulee kapenemaan syvyyssuunnassa.
Voi olla, että jätämme kaapiston kokonaan pois, sillä olemme alkaneet miettiä, että jos sittenkin laittaisimme takan myös taloon (saunarakennukseen tulee takka-kiuas yhdistelmä). Mikäli takka tulee, ei minusta ole kaunista, että sen takaa näkyy avohyllykköä, joten siinä tapauksessa hyllykkö jätettäisiin pois.
Muuten, ottaisin erittäin mielelläni vastaan vinkkejä kauniista, moderneista takoista. Haluaisimme sellaisen takan, jossa on luukku sivussa niin, että suurempi luukku on olohuoneeseen päin ja pienempi ruokailutilaan päin. Esimerkiksi S:n kodissa on mielestäni erittäin kaunis takka! Sellainen sopisi meillekin. Tai jos löytyisi takka, jonka luukut ylettyisivät edestä molemmille sivuille…?

6 Comments
>http://www.takkamestarit.net/index.php?f=show&nav=0,3160,3136,3139&t=s&l=fiToi takka oli joskus Inno ohjelmassa, muistaakseni ilman polttopuu välikköä ja oli mielestäni tosi kaunis ja ajaton :)Onkohan sama takka muuten myös S:llä 🙂
>Meillä takkavaihtoehtona on Tiilerin Funkkistakat. Sävyjä on monen monta ja mekin haluamme tuollaisen samanlaisen takan kuin S:llä. Meillä tulisi takkaan vielä kiinteä paikka (sellainen korkea lokero) polttopuille 🙂 Kavereilla on Tiilerin takka ja ovat olleet tosi tyytyväisiä.
>Saanko kysyä vielä, minkähintainen tuo Column oli? Ne on mun toivelistalla, haluaisin isot lattialaatat kylppäriin ja sitten ne olis vähän helpompi toteuttaa 🙂
>Puosilla on tosiaa niitä hissiluukkuja (samoja ku meillä) peilikuvinakin. sit on myös saatavilla sellanen, jossa luukku on kolmella sivulla! sitäkö tarkoitit? vastasin sun sähköpostiin illalla 🙂
>ja Oona: kyllä vain, meidän takkahan se siellä :D. tai aika lailla samanlainen, hieman paremmilla mitoilla ;). suosittelen puutilaa, kaunis sisustuselementti!! polttopuiden taa voi myös laittaa esim. ledvalot, valot näkyy kauniisti puiden lomasta 🙂
>Oona: kiitos linkistä! 🙂 Tuolla olikin niin ihania takkoja, että iski valinnanvaikeus. Mutta tämä olisi ihana meille:http://www.takkamestarit.net/index.php?f=show&nav=0,3160,3136,3146&t=s&l=fiJane: meillä oli viimeksi Tiilerin Tupla-Lauri ja olimme siihen ihan tyytyväisiä. Tällä kertaa haluamme takan, jossa on suuremmat luukut kuin Tiilerin takoissa. Unidrainin Columin tarkkaa hintaa meillä ei valitettavasti ole tiedossa. Halusimme sellaiset jo eka raksakerralla ja nyt toteutamme sen pienen unelman. 😉 Tuskin meidän budjetti lattiakaivoihin kaatuu… ;)S: jeps, tarkoitin juuri sitä. Ja kiva, että vastasit niin nopsaan! :)Ja se puutila takan vieressä on kyllä kaunis – ja käytännöllinen.