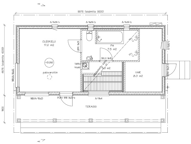
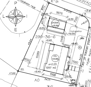
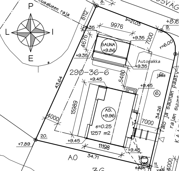
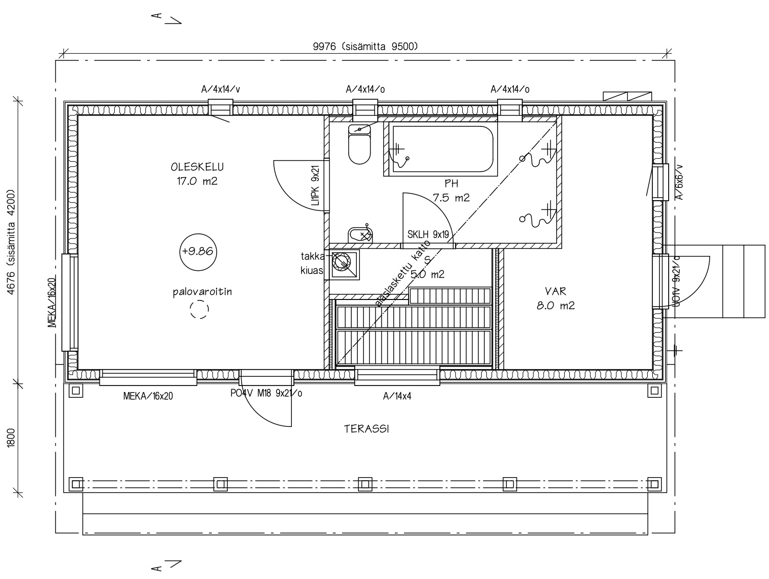
Tänään saimme talon ja saunarakennuksen lopulliset piirrustukset, joilla voimme hakea rakennuslupaa. Tältä ne näyttävät:
Kaavamääräysten takia rakennusten kattokaltevuus on jyrkempi kuin alkuperäisessä Harmajassa. Aluksi minua epäilytti, että tuleeko pulpettikatto näyttämään hassulta jyrkempänä versiona, mutta kävimme katsomassa erästä Harmajaa, jossa on sama kattokaltevuus kuin mikä meille on tulossa ja se ei näyttänyt ollenkaan hullulta. Harmajaa saa kyllä myös harjakattoisena.
Hahmottelimme pohjaan vielä takkavarauksen (joka on kuvassa suurempi kuin mitä takka lopulta tulee olemaan) siltä varalta, että haluammekin joskus asentaa takan taloon. Takan paikkaa oli vähän hankala päättää, sillä emme halunneet sitä samalle seinälle, jolle tv on tulossa. Niinpä kekkasin, että sen voisi laittaa tilanjakajaksi tuohon olohuoneen ja keittiön väliin, jolloin lastenhuoneisiin johtava käytävä jatkuu yhtenäisenä keittiöön asti. Ratkaisu tuntuu oikein hyvältä, vaikka emme ainakaan näillä näkymin ole laittamassa ollenkaan takkaa taloon.
Illalla on tiedossa sitten paperihommia, kun alamme täyttää rakennuslupahakemuksia.





21 Comments
>Hienolta näyttää, ulkopuolen väritys kuulostaa hyvältä; helppo sanoa kun meillä on ovien väritystä lukuunottamatta juuri samat värit vaikkakin pintamateriaali on eri 🙂 Ja vielä edelliseen postaukseen liittyen oikein onnellista "odotusta", toivottavasti projekti etenee mahdollisimman mutkattomasti!
>Ihailen valkoisia taloja, harmaa sopii mukaan niin hyvin. Johtuukohan se siitä, että lapsuudenkotini oli valkoinen.Saunarakennus on kiva, pidän ajatuksesta, että saunaan kuljetaan kuin silloin kauan ennen pihapolkua pitkin.
>Toimivalta pohjalta vaikuttaa. Edellisen talon kuvat ovat ihanan harmonisia. Jään seuraamaan millaisen sisustuksen teidän uusi talo saa :)http://kolmehuonetta.blogspot.com
>Vaikuttaa tosi kivalta pohjalta, julman kokoinen olkkari ja ruokailutila ! Tosi hyvä!Suunnittelit valkoista keittiötä, onko työtaso siis valkoinen laminaatti vai valkoinen kvartsi/kivi,jos saan udella?:)
>Hannah: kiitokset onnentoivotuksista! 🙂 Sitä varmasti tarvitaan. ;)Väritys vähän jänskättää, sillä nyt meille tulee tummanharmaat ovet ja ikkunanpuitteet (ja viimeksi oli valkoiset). Mutta ollaan käyty ajelemassa ja kateltu taloja, joissa on sama väritys ja hyvältä se näyttää. arleena: erillinen saunarakennus tuntuu viehättävältä. Haaveilen usein siitä, kuinka hipsimme jouluna saunaan ja ulkona on paljon lunta ja kauniita lyhtyjä. 🙂 Valkoinen talo on ajaton valinta.Oona: kiitos, kiva kuulla. 🙂 Minäkin seuraan innokkaana teidän projektia. :)Anonyymi: jep, oleskelutilasta tuli suuuri niin kuin halutiinkin. 🙂 Keittiön tasot ovat vielä vähän auki, mutta olemme suunnitelleet, että valamme saarekkeen tason itse betonista ja ikkunan edessä oleva työtaso tulee näillä näkymin olemaan valkoista laminaattia tai Duratia (tms.). Varmasti teen niistä erillisen postauksen sitten kun sen aika on. 🙂
>Pohjapiirros on aivan loistava! Ihana vaatehuone-kodinhoitohuone-yhdistelmä.
>erillinen saunarakennus <3. tsemppiä hakemusten täyttöön!
>Pohja näyttää hyvältä ja minusta on tosi fiksua laittaa erillinen saunarakennus, kun teillä kerran on tontilla tilaa. 🙂
>Rakennusmiehet palaavat lomilta heti maanantaina, joten ehkä tontilla nyt oikesti rupeaa tapahtumaan ja saan päivittää tilanteita "blogi päiväkirjaani". Kuopion asuntomessuillakin pitäisi ehtiä käymään (lokakuun alussa täytyy materiaalit olla selvillä) ja ideoita sieltä etsimään 🙂 Meinasitko vierailla Kuopiossa?Toivottavasti sielläkin saadaan kohta rakennustyöt käyntiin!
>Onpas ihana talo teille tulossa:) Tuo erillinen sauna-rakennus varsinkin kuulostaa ihanalta! Onko sinne tulossa oikeasti tuo amme? Meillä himpun isompi kylpyhuone ja olin sinne suunnitellut myös ammeen, mutta totuus oli, että amme ja kaksi suihkua eivät mahtuneet suosiolla, jos haluaa myös käyttää sitä suihkua ilman, että seisoo kiinni seinässä! Meille amme matkasi yläkertaan ihanaan kylpyparatiisiin, mutta kyllä se lasten kanssa olisi ihana olla samassa tilassa, kuin sauna:)
>Tiinatar: kiitos, siltä meistäkin tuntuu. :)Anonyymi: erillinen saunarakennus on kyllä kiva juttu. Kiitokset tsempityksestä; sitä varmasti tarvitaan.Carlina: niinpä. Saunarakennus on kätevä myös kaukaa tulevien vieraiden kannalta. :)Oona: toivottavasti teillä alkaa pian "pyörät pyöriä eteenpäin". Me vielä odotellaan rakennuslupapäätöstä; huomenna pitäis selvitä miten käy. Jännittää!Mietitiin miehen kanssa, että ehkä voitaisiinkin lähteä käymään Kuopiossa. Aluksi ajattelin, että se on turhaa, sillä kuvista päätellen sisustuksissa ei ole mitään uutta tai erikoista, mutta toisaalta siellä näkisi miltä esim. suunnittelemamme lattia näyttää livenä yms. Lähtisimme katsomaan ennemminkin pintamateriaaliratkaisuja kuin sisustuksia. Mutta saa nähdä saammeko lapsenvahtia – lasten kanssa sinne ei voi lähteä (menee hermot kaikilta).Anonyymi: kyllä meille on tulossa amme ja halusimme sen nimenomaan niin, että sinne näkee saunasta (voi valvoa lapsia saunasta kun he kylpevät). Siirsimme suihkuseinää taaemmas, jotta suihkut mahtuvat. Tilaa ei kyllä hirveästi jää toiselle suihkulle, mutta varastosta ei viitsinyt ottaa niin paljon tilaa pois. Teidän kylpyparatiisi kuulostaa ihanalta! 🙂
>Hei! Eksyin tänne kun etsin kivoja pohjia tulevaan taloomme. Tontti on suunnittelu ihan alussa. Meidän yksi vakavasti otettava ja niin ihanalta tuntuva on juuri tuo sauna toiseen rakennukseen mikä teille tulee. Meil on aika pieni tontti et saa nähdä jääkö haaveeksi. Onnellista taloprojektia!Niina
>Hei vaan!On tosiaan kaunis tuo Harmaja.Klassinen,rauhallinen,kaunis,mieli ja silmä lepää.Hauska yhteensattuma:ollaan päätetty miehen kanssa että parin kolmen vuoden päästä myydään talo ja rakennetaan uusi.Molemmat halutaan veden äärelle ja tuo saunarakennus on ehdoton!!Kiva.Taloon ei tule saunaa.Aloitettiin suunnittelu siis jo nyt,onpahan aikaa miettiä ja hioa.Tytömme koulu on tuossa kiven heiton päässä ja ajateltiin että saa käydä ala-asteen rauhassa loppuun siinä.Ei tarvitse vaihtaa koulua ja matka kouluun on todella lyhyt.Kyllä me tykätään tästä nykyisestäkin kodista mutta tässä on liikaa neliöitä kolmelle.Ja haluamme yhteen tasoon.No,jään seuraaman kauniin kotinne valmistumista.Todella mielenkiintoista!Ja hei,tapettien tsekkaaminen ei ole koskaan liian aikaista;)Terkuin,ninahanne
>Niina: kiva, että löysit tänne. 🙂 Toivottavasti saatte saunarakennuksen mahtumaan jos se on toiveissanne. Onnea teidänkin projektiin!ninahanne: oi, suunnitelmanne kuulostaa kivalta. Hyvä aloittaa suunnittelu jo ajoissa, niin ehtii miettiä asioita monelta kantilta. Toista kun rakentaa, tietää mitä haluaa tehdä toisin kuin eka kerralla. 🙂
>hei!ihanaa että löysin blogisi koska haaveilen itse myös Harmajasta, eikä siitä vielä löydy kovin paljoa rakentajien kuvia/kokemuksia.Enemmänkin näistä Kannustalojen perinnemalleista kyllä..Ryhdymme rakentamaan ehkä ensi kesänä myös tänne K-Pohjanmaalle ja jään mielenkiinnolla seurailemaan blogiasi ja rakennusurakkaanne. 🙂
>Anonyymi: kiva kuulla, että projektimme kiinnostaa. 🙂 Minäkin kaipaisin enemmän raksa- ja sisustusblogeja modernin tyylisistä taloista. Tsemppiä teidän projektiin sitten, kun sen aika on! 🙂
>Kiitos!:)Piti vielä kysyä tuohon edelliseen kommenttiin lisäten, että huomastitteko onko Harmaja näkyvästi edullisempi vaihtoehto näihin Kannustalojen perinnemalleihin verrattuna?
>Anonyymi: en osaa sanoa kuinka paljon Harmajassa on hintaeroa verrattuna perinnemalleihin (tai kumpi on kalliimpi?). Me emme kysyneet perinnemallien tarjousta ollenkaan, sillä olimme alusta asti rakentamassa modernia puutaloa. Kannustalojen edustaja osaa varmasti auttaa. 🙂
Pingback: Keittiön kodinkoneet | Valkoinen Harmaja
Hei!
Ollaan mietitty itsellemme harmaja taloa. Olisin kiinnostunut kuulemaan mikä kattokaltevuus teillä on, koska luin että tekin sitä jouduitte muutttamaan. Meillä tod.näköisesti sama edessä, kun kaava määrä.
Hei, tämä keskustelu on jo aika vanha, mutta sen verran kiinnostaisi saunasta tietää, että onko tuo saunarakennus itse suunnittelemanne vai jokin paketti? Itselle olisi tarkoitus rakentaa juuri tuon näköinen saunarakennus omalle pihalle…